| 種別 | 新築戸建 | 価格 | 3290万円 (税込) |
|---|---|---|---|
| 物件名 | 明石市松江 新築戸建 | ||
| 所在地 | 明石市松江759-4 | ||
| 交通 | 山電電鉄「林崎松江海岸」駅 徒歩約12分 | ||
| 交通2 | JR山陽本線「西明石」駅 徒歩約18分 | ||
| 小学校区 | 藤江小学校 | 中学校区 | 望海中学校 |
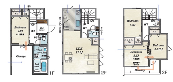
| 構造 | 在来工法 3階建て | 間取 | 4LDK |
| 建物面積 | 107.43㎡ (32.5坪) | 土地面積 | 73.44㎡ (22.22坪) |
| 築年月 | 令和7年11月完成 | 駐車場 | 有り(2台) |
| 私道負担 | 無し | ||
| 土地権利 | 所有権のみ | 地目 | 宅地 |
| 都市計画 | 市街化 | 用途地域 | 第1種住宅地域 |
| 建ぺい率 | 60% | 容積率 | 200% |
| 法令上の制限 | |||
| 接道状況 | 公道 南側 約2.95~3.9m | ||
| 建築確認番号 | 第R07SHC110356号 | ||
| 現況 | 完成 | 引渡日 | 相談 |
| 取引態様 | 一般仲介 | ||
| 設備 | Wロック電池鍵・浴室暖房換気乾燥機・TVモニターインターホン・24時間換気・食洗器・全室ペアガラス・LED照明 | ||
| 備考 | |||
■各部屋にウォークインクローゼットがございますのでお部屋をスッキリお使いいただけます。
■南側にバルコニーがございますので陽当たり・風通しも良好でお洗濯物も気持ち良く乾きますよ。
■お車は普通車1台 軽自動車1台の計2台止めていただけます。